Rif. immobile:
EK-111892773

Locale commerciale in Vendita in vendita San Vito Dei Normanni (BR) in Puglia

395.000,00

Descrizione

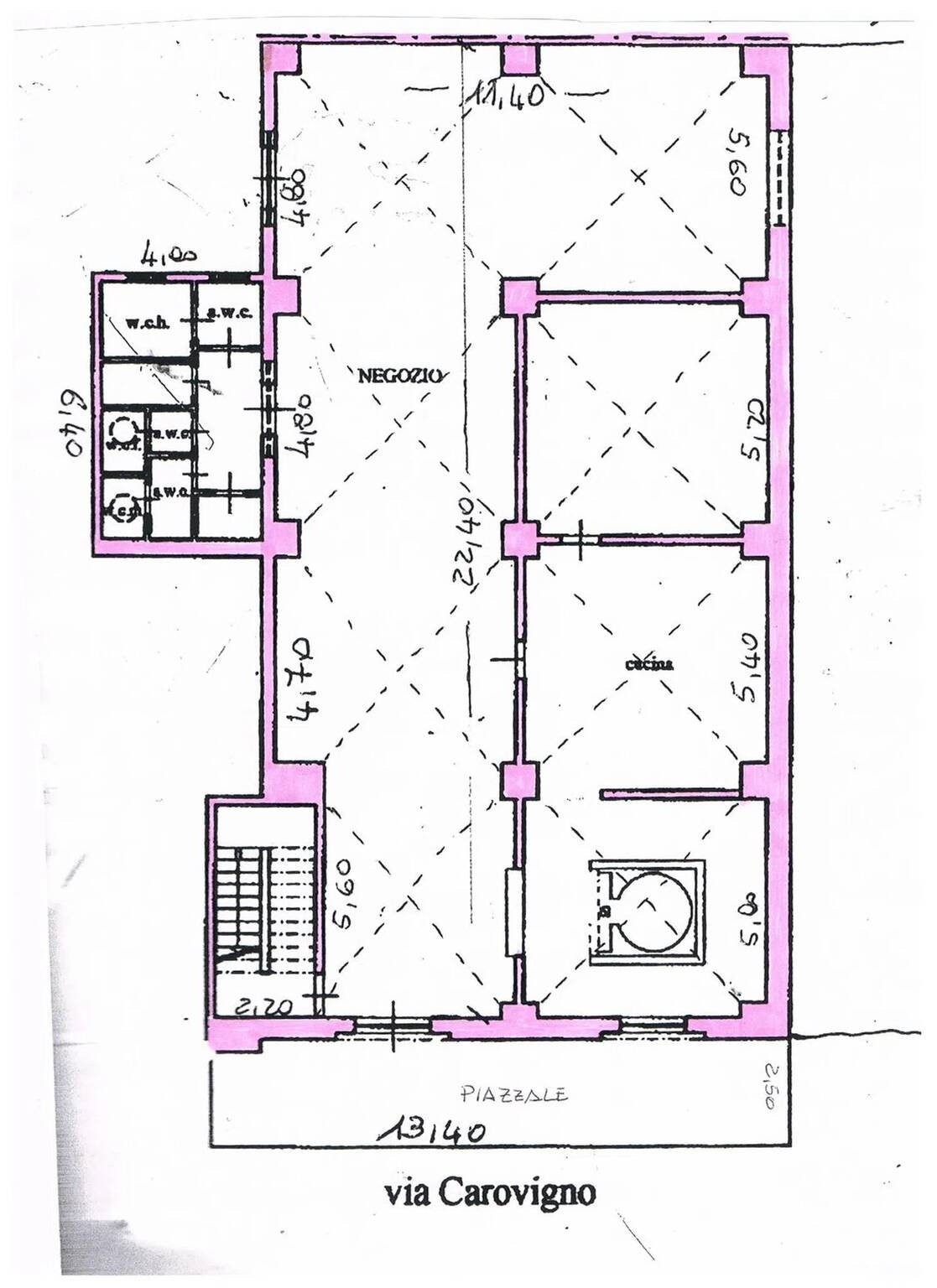
Locale in Carovigno, s.n.c, Centro, San Vito dei Normanni

La Tecno Property Immobiliare propone in vendita ampio locale Commerciale attualmente adibito a ristorante con regolare contratto di affitto in scadenza costituito da androne di ingresso, ampia sala, n. 3 locali adibiti a cucina, deposito e forno con annesso blocco servizi comprendente n. 5 W. C. di cui uno idoneo per disabili, corridoio e spogliatoio. Il locale è stato realizzato in data antecedente al 1940 è completamente ristrutturato nel 2004. La struttura dell'edificio è in muratura con pregevoli volte a stella che compongono nel complesso n. 8 campate di circa 25mq. cadauna.
L'immobile si presta molto bene per essere adibito a qualsiasi uso commerciale ed essendo attualmente concesso in affitto può essere anche un ottimo investimento con elevata rendita.
Essendo prospiciente una via ad alto scorrimento gode di molta visibilità e facilmente fruibile essendo la zona dotata, nelle immediate vicinanze del locale, di diverse aree destinate a parcheggio pubblico.
L'immobile dispone anche di un ampio terrazzo al primo piano, edificabile, raggiungibile attraverso una comoda scala a cui si accede dall'androne di ingresso. Sulla base degli indici del vigente PRG è possibile realizzare in primo piano una superficie coperta di circa mq. 140,00 per realizzare o una residenza o ulteriori locali accessori legati all'attività del piano terra.

Mappa

Richiedi Informazioni

Dettagli

  • Rif. immobile: EK-111892773
  • Comune: San Vito Dei Normanni (BR)
  • Piano: Più livelli
  • Locali: 4
  • Cucina: 1 (Abitabile)
  • Bagni: 3
  • Stato immobile: Ristrutturato
  • Prezzo: € 395.000,00
  • Classe energetica: ESENTE

Caratteristiche

  • Terrazzo

Ubicazione

72019 - San Vito Dei Normanni (Brindisi)

Ubicazione: Centro urbano

  • Costa: 0 Km
  • Ospedale: 0 Km
  • Ferrovia: 0 Km
  • Aeroporto: 0 Km
  • Centro: 0 Km

Affidati a noi

L'Agenzia Immobiliare Tecno Property offre assistenza qualificata e completa nella compravendita di immobili in Puglia. Il nostro team esperto ti guiderà in ogni fase della scelta, garantendo professionalità e trasparenza.

Contatti

Richiedi Informazioni

Compila il modulo di richiesta informazioni sui nostri prestigiosi servizi. Il nostro staff ti risponderà nel più breve tempo possibile.

Contattaci