Rif. immobile:
guaceto

VILLA GUACETO in vendita San Vito Dei Normanni (BR) in Puglia

495.000,00

Descrizione

VILLA DI NUOVA COSTRUZIONE

La Tecno Property Immobiliare operante nel settore da oltre 10 anni in partnership con qualificata impresa di costruzioni propone in vendita “VILLA GUACETO” villa di nuova costruzione su un terreno agricolo edificabile.
Questa proprietà si trova nel cuore dell'Alto Salento a pochi chilometri dal dalle spiagge più suggestive e naturali della puglia .
La contrada "Mondescine" distante solo Km.6,00 dalla Città di San Vito dei Normanni è meno di 1,5 Km. Dal Borgo di Serranova è caratterizzata dalla presenza di ampie zone di macchia mediterranea e grandi uliveti che crea subito una sensazione di relax e riservatezza.
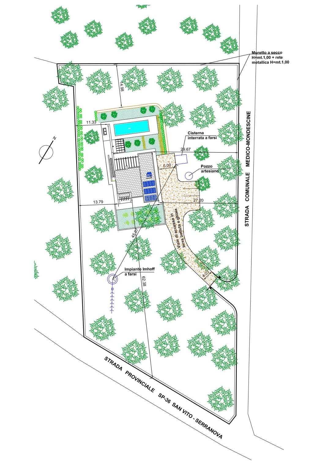
Il terreno, su cui a breve saranno avviati i lavori di costruzione della Villa, ricade nel territorio di San Vito dei Normanni ed ha una estensione di circa mq. 6.100,00 sufficienti per garantire una giusta privacy . L'ubicazione della proprietà proposta, come già detto, è ottimale per raggiungere le località più rinomate della zona come Ostuni, Cisternino, Ceglie Messapica e le splendide spiagge della riserva naturale di Torre Guaceto che distano solo 2,5 km.
La città di San Vito dei normanni è facilmente raggiungibile con la comoda viabilità Comunale per corribile anche in bicicletta.
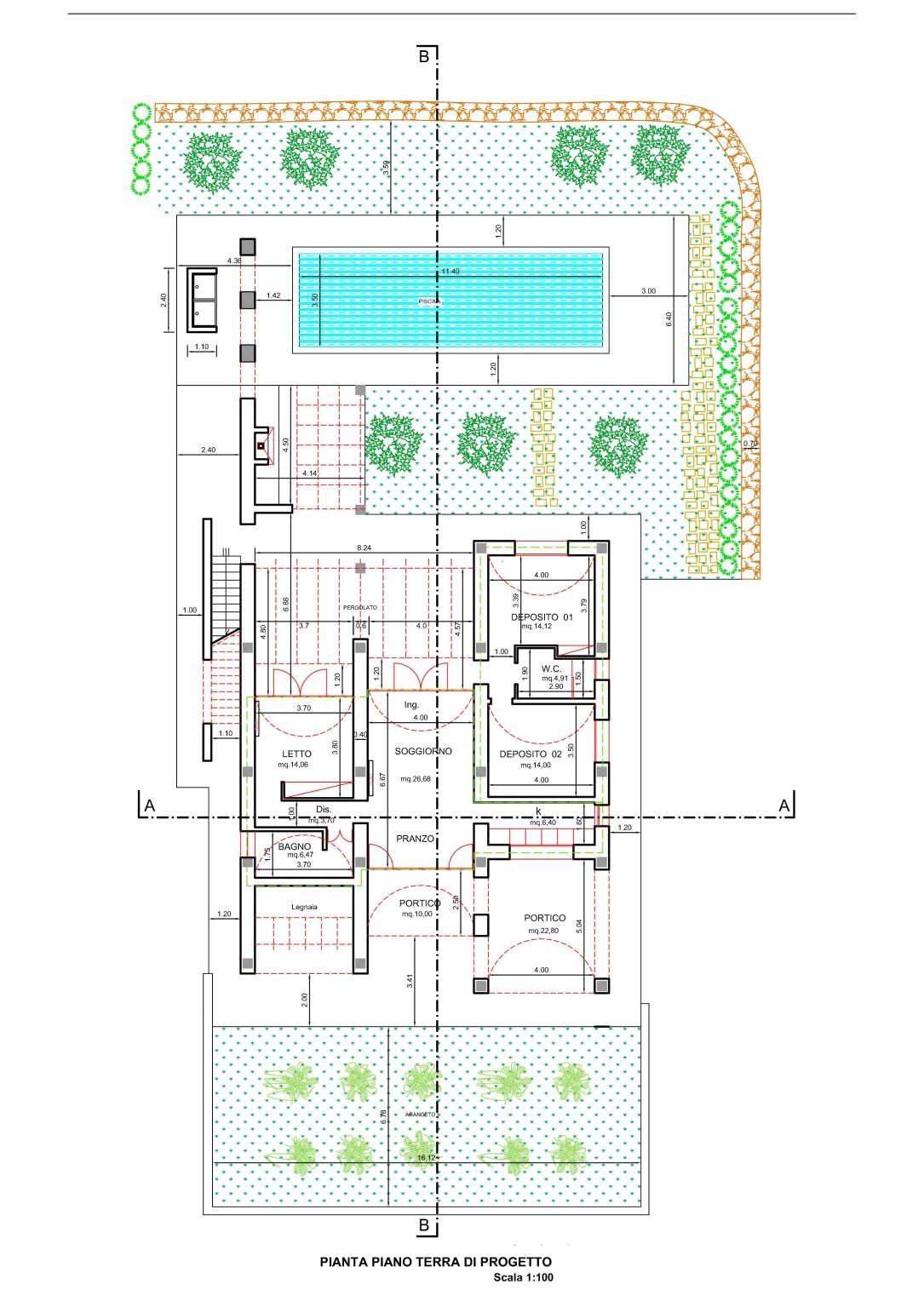
Il progetto già approvato dal Comune di San Vito dei Normanni prevede la costruzione di una nuova residenza rurale di circa mq. 110,0, con volte in tufo, tipica della tradizione locale, composta da un soggiorno-Pranzo con annessa zona cottura dal quale attraverso ampie vetrate si affaccia sulle due corti interne e la piscina, n. 1 camere da Letto con bagno en suite, e altre due camere con accesso autonomo con bagno annesso a un piccolo disimpegno.
Le camere da letto affacciano su un ampia corte delimitata da muro in pietra a secco per avere un spazio verde riservato e godere dell’ampio portico/veranda nelle serate estive all'aria aperta.
Per completare il totale godimento del paesaggio circostante e il clima del mare adriatico è prevista la realizzazione di una piscina di circa mq. 40,00 con annesso piazzale e pergolato attrezzato con zona barbecue e cucina esterna per organizzare piacevoli serate all'aperto.
Le rifiniture previste sono dettagliate in un apposito capitolato richiedibile allegato all’annuncio e/o richiedibile inviando un messaggio a info@tecnoproperty.it o anche tramite messaggio whatsApp al seguente numero telefonico 3396981273 per richiedere maggiori dettagli e informazioni.

Mappa

Richiedi Informazioni

Dettagli

  • Rif. immobile: guaceto
  • Comune: San Vito Dei Normanni (BR)
  • Piano: Piano terra
  • Locali: 4
  • Stanze da letto: 3
  • Cucina: 1 (Angolo cottura)
  • Bagni: 2
  • Riscaldamento: Autonomo
  • Superficie Abitazione: 110 mq
  • Superficie Coperta: 140 mq
  • Superficie Terreno: 6.100 mq
  • Stato immobile: Nuova costruzione
  • Prezzo: € 495.000,00
  • Classe energetica: G

+ Più efficiente

- Meno efficiente

EDIFICIO A ENERGIA QUASI 0

CLASSE

ENERGETICA

G

Caratteristiche

  • Aria condizionata
  • Piazzale
  • Piscina
  • Posto Auto
  • Fonti rinnovabili
  • Riscaldamento Autonomo
  • Terrazzo
  • Veranda
  • Camino

Ubicazione

72019 - San Vito Dei Normanni (Brindisi)

Ubicazione: Campagna

  • Costa: 2,5 Km
  • Ospedale: 0 Km
  • Ferrovia: 0 Km
  • Aeroporto: 0 Km
  • Centro: 6 Km

Affidati a noi

L'Agenzia Immobiliare Tecno Property offre assistenza qualificata e completa nella compravendita di immobili in Puglia. Il nostro team esperto ti guiderà in ogni fase della scelta, garantendo professionalità e trasparenza.

Contatti

Richiedi Informazioni

Compila il modulo di richiesta informazioni sui nostri prestigiosi servizi. Il nostro staff ti risponderà nel più breve tempo possibile.

Contattaci